Consultancy: Retail design lab

The Retail Design Lab also provides scientific services to large and small retailers from various sectors. Also, designers, cities & towns and sector organizations can turn to the lab for advice, workshops and training courses. The lab's services always start with the consumer at the center and with an eye on the brand values of the retailer/brand.

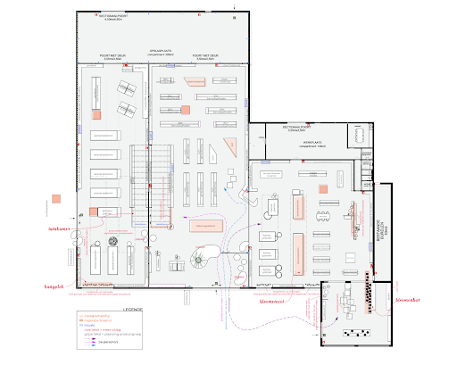
One of our key consultancy services is providing a strategic floorplan. This type of collaboration begins with the completion of our design brief tool. On the basis of this scientifically prepared document, an ideal route is mapped out for various customer motivations, linked to the layout of the store down to product group level. An extensive study results in a strategic floor plan in which we deliver the layout of the store with an indication of where which product groups/categories will be placed, supplemented with a route plan (see image). 

arck_dfm_Retail Design Lab
With the renovation of our store, it was a big challenge to combine a maximum of atmosphere and experience with optimal functionality. Thanks to the Retail Design Lab we succeeded 100%: the store looks much more spacious and yet there is a warmth and intimacy that our customers unanimously praise. Thank you Charlotte: we set the bar high but you met it effortlessly.
Michael Croes & Lot Decock van Lingerie Ohlala, Lendelede (BE)

Research domain: Designing for More
Contact person: Prof. dr. Katelijn Quartier , Lieve Weytjens

Back to Designing for More